Enquire Now
+91 99590 33999
image

Type 1 — 4BHK Manor

402.50 Sq.Yds Plot (63' × 57'6")

Type 1 — 4BHK Manor

402.50 Sq.Yds Plot (63' × 57'6")  |  East Manors: 86  |  West Manors: 79  |  Total: 165 No's

Type 1 East Facing Site Plan

East Facing

Built-Up: 5,828 sq. ft.  |  Courtyard: 14'9" × 12'0"

Structure: G+2+Terrace | Private Lift

Type 1 West Facing Site Plan

West Facing

Built-Up: 6,175 sq. ft.  |  Courtyard: 11'3" × 11'6"

Structure: G+2+Terrace | Private Lift

Ground Floor

East Ground Floor Plan
East Facing — 2,076 sq. ft.

Living Room (16'×19'9"), Dining (14'9"×13'4½"), Dry Kitchen (10'4½"×13'4½"), Wet Kitchen (16'×9'4½"), Guest Bedroom 1 (16'×11'), Servant Room (10'10½"×9'7½"), Utility, Green Pocket (14'9"×12'), Parking, Lift

West Ground Floor Plan
West Facing — 1,872 sq. ft.

Living Room (20'9"×15'), Dining (16'6"×13'6"), Dry Kitchen (15'6"×9'4½"), Wet Kitchen (9'6"×9'4½"), Guest Bedroom (15'6"×11'), Servant Room (9'7½"×8'6"), Utility, Green Pocket (11'3"×11'6"), Parking, Lift

First Floor

East First Floor Plan
East Facing — 1,756 sq. ft.

Master Bedroom (16'×21'4½"), Children Bedroom (12'×15'9"), Pooja Room (8'6"×6'), 2 Walk-in-Closets, 2 Sit-Outs (16'9"×8' each), Double Height (14'9"×9'10½"), Green Pocket, Lift

West First Floor Plan
West Facing — 1,742 sq. ft.

Master Bedroom (15'6"×20'9"), Children Bedroom (14'9"×13'4½"), Pooja Room (6'×4'10½"), Private Lounge (16'6"×12'), 2 Walk-in-Closets, Sit-Out (10'10½"×5'3"), Green Pocket, Lift

Second Floor

East Second Floor Plan
East Facing — 1,555 sq. ft.

Home Theater (16'×23'6"), Private Lounge (14'9"×19'), Guest Bedroom 2 (16'×13'), Bar Counter, 2 Sit-Outs (16'9"×12' each), Green Pocket, Powder Room, Lift

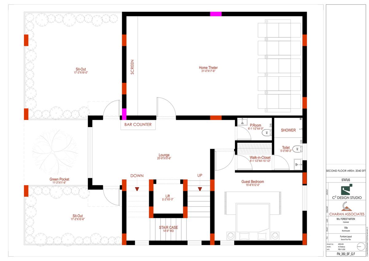
West Second Floor Plan
West Facing — 2,040 sq. ft.

Home Theater (31'×17'6"), Lounge (20'9"×10'6"), Guest Bedroom (15'6"×12'), Bar Counter, 2 Sit-Outs, Green Pocket (11'3"×11'6"), Powder Room, Lift

Terrace Floor

East Terrace Plan
East Facing — Head Room 441 sq. ft.

Open Terraces on both sides, Staircase & Lift access

West Terrace Plan
West Facing — Head Room 521 sq. ft.

Lounge (20'9"×10'6"), Staircase & Lift access

Master Layout Plan

Forest Nation Master Layout Plan
WhatsApp How May I Help You?